image expliquative DPE
calcul

Visite virtuelle

Le mot de votre conseiller

Situé au 3ème étage d'une résidence récente, au sein de la Villa Aurélia, cet appartement T2 parfaitement agencé séduit par sa bonne configuration, sans perte de place.

Bénéficiant d'une exposition plein sud, idéal pour profiter des beaux jours.

Ce bien convient parfaitement pour une première acquisition comme pour un investissement locatif grâce à son emplacement recherché proche de la gare de Saint-Julien-En-Genevois.

Un garage ainsi qu'une cave complétent ce bien. Chauffage individuel gaz.

Bien en copropriété de 111 lots principaux. Quote part charge annuelle 1039.43 €. Pas de procédure en cours. Honoraires charge vendeur.
"Les informations sur les risques auxquels ce bien est exposé sont disponibles sur le site Géorisques : www.georisques.gouv.fr"

Diagnostic de performance énergétique

Classe énergie

A B 108
kWh/m².an
C D E F G

Emissions de Gaz à Effet de Serre (GES)

A B C 21
kg CO2/m².an
D E F G

Estimation des coûts annuels d'énergie du logement

Les coûts sont estimés en fonction des caractéristiques de votre logement et pour une utilisation standard sur 5 usages (chauffage, eau chaude sanitaire, climatisation, éclairage, auxiliaires)

entre 540 € et 780 € par an

Prix moyens des énergies indexés au 01/01/1970 (abonnements compris)

Informations complémentaires

Type de bien : Appartement

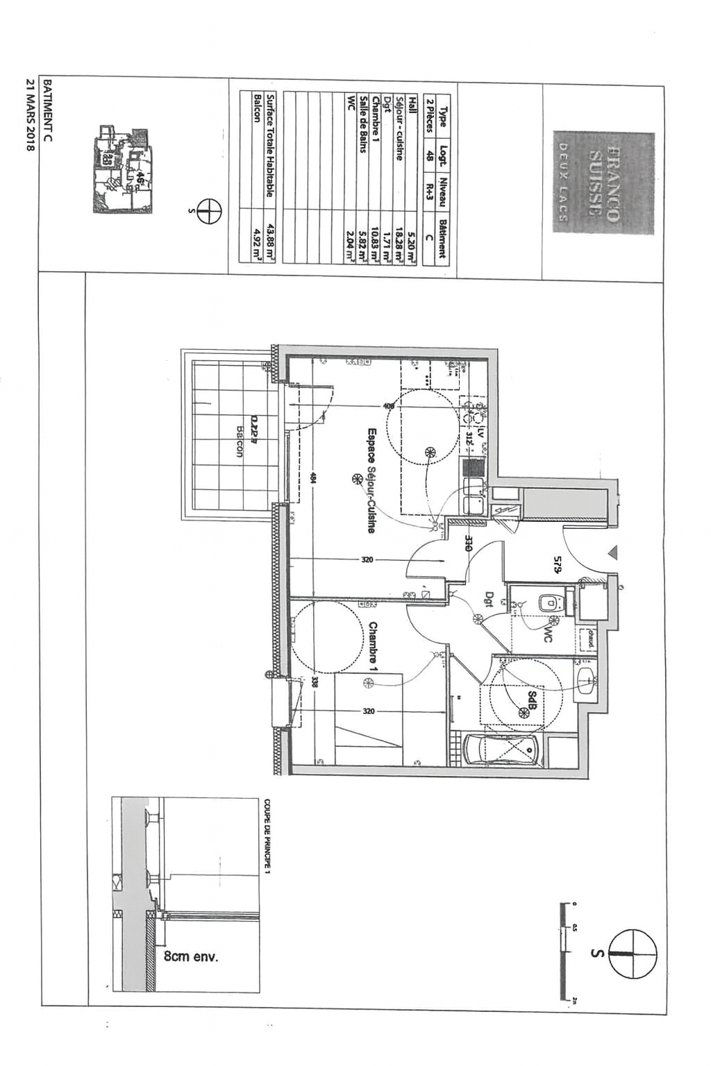
Surface habitable : 43.88 m²

Surface séjour : 18.28 m²

Étage(s) : 3/4

Exposition : Sud

Année de construction : 2018

Ascenseur : avec

Nombre de pièces : 2

Nombre de chambres : 1

Nombre de SDB : 1

Nombre de WC : 1

Cave : OUI

Stationnement : Garage ind

Type de chauffage : Gaz individuel

Bien en copropriété** : Oui

Quote-part budget*** : 1039.43



* Article L 721-2 du CCH, il sera noté les lots principaux soit lot d'habitation et lot à usage commercial (hors cave, garage, entrepôt et place de parking)


** Loi n° 65-557 du 10 juillet 1965


*** Montant moyen de la quote part de charges annuelles courantes. Article L 721-2 du CCH


**** Articles 29-1 A et 29-1 de la loi n°65-557 du 10 Juillet 1965 et de l'article L 615-6 du CCH

Des questions ?

Appelez-nous au

04 50 83 72 50

Ces biens peuvent vous intéresser

Appartement 3 pièces
73,82m2Annemasse

249 000 €

Appartement 2 pièces
46.76m2Saint-julien-en-genevois

345 000 €

Appartement 4 pièces
84,71 m²m2Beaumont

390 000 €

Appartement 4 pièces
m2Archamps

465 000 €

Appartement 2 pièces
m2Saint-julien-en-genevois

268 000 €

Vous êtes intéressé par ce bien ?

Contactez-nous directement

Vous préférez être contacté par : *
reCAPTCHA

Calcul de prêt

Renseignez 4 éléments pour calculer l'élément manquant de votre prêt